Sıcak su kazanı 111 GEOTHERM WMB 11,63
Karakteristikler
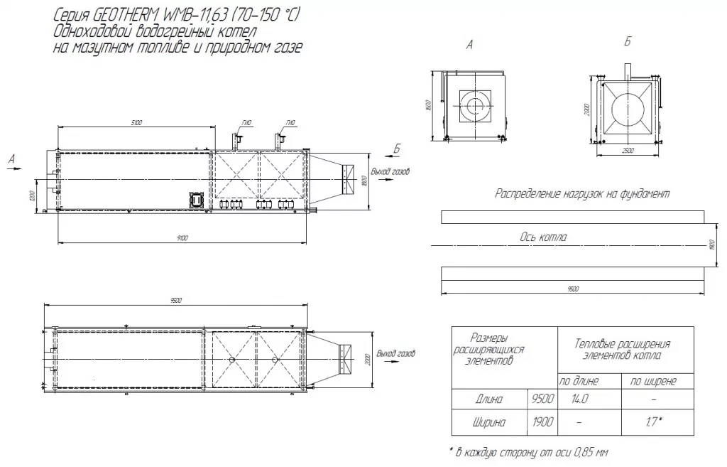
*ekipman özellikleri tipiktir ve tasarım sırasında değişebilir- Isıtma kapasitesi, kw 11630
- Kazan verimliliği, doğal gaz, % 93
- Yakıt tüketimi, doğal gaz, N * m3/s 1247,7
- Kazandan su akışı, t / h 125
- Kazanın ağırlığı (brülörsüz, susuz), kg 15460
- ısıtma yüzey alanı, m2 364,8
- Kazan verimliliği, akaryakıt, % 92,1/93,1
- Yakıt tüketimi, akaryakıt, kg/saat 1186,6
Ekipmanı seçin
Modelin fotoğrafı
Tamamlanan projeler
Karakteristikler
Ürün Açıklaması
GEOTHERM® WMB serisi kazanlar sıcak su elde etmek için tasarlanmıştır. Kazanlar, endüstriyel ve evsel tesislerin ısı kaynağına odaklanmıştır.
GEOTHERM® WMB serisi kazanlar, 70-95 °C; 70-110 °C; 70-150 °C olmak üzere üç sıcaklık programı ile üretilmektedir.
GEOTHERM® WMB serisi kazanlar 0,63 ile 35,0 MW arasında değişen kapasitelerde üretilmektedir.
GEOTHERM® WMB serisi kazanlar ile GEOTHERM WGB(3P) serisi kazanlar arasındaki temel fark; GEOTHERM WGB(P); GEOTHERM WGB(V), boru sisteminde bir ara kollektörün sağlanması ve kül kalıntılarını gidermek için konvektif kısmın altında nişlerin bulunmasıdır. Konvektif yüzeydeki adımı artırmak için bir ara toplayıcı gereklidir, bu, konvektif yüzeyin akaryakıtla tıkanmasını önler. Nişler, akaryakıtın yanması sırasında konvektif yüzeyde oluşan kül kalıntısını gidermek için tasarlanmıştır. gorenje. Bu serideki kazanların ana avantajı, akaryakıtla çalışabilmeleridir.

GEOTHERM® WMB serisi kazanların ana üniteleri:
- Kollektör çerçevesi - kazanın hidrolik şemasına bağlı olarak su akışlarını dağıtmaya ve kazanın dış kablo demetine bağlanmasına hizmet eder.
- Konvektif bölüm - kazanın boru sisteminin ana parçasıdır.
- Destek çerçevesi - kazanın boru sisteminin montajı için bir temel görevi görür.
- Sertlik kemeri - kazanın sertliğini sağlamak için bir çerçeve görevi görür.
- Patlayıcı valfli baca kutusu - giden gazların giderilmesi için bir kanal görevi görür.
GEOTHERM VWS 11,63 sıcak su kazanı, yabancı ve Rus üreticilerin brülörleriyle akaryakıtla çalışır. Akaryakıt üzerinde çalışırken çıkan gazların sıcaklığı 205 ° C'ye ulaşır.




